История объявлений о долгосрочной аренде жилья по адресу Казань, улица Родины, 24В
Найдено 43 объявления.
20 000 р.
01.05.22 в 21:01
Казань, Советский р-н, улица Родины, 24В
Сдам однокомнатную квартиру с евроремонтом на длительный срок. Ранее никто не жил. В квартире новые холодильник и стиральная машина Samsung. Встроенный гардероб, раскладывающийся диван. Возле подъезда магазин Пятёрочка. В быстрой доступности ТЦ Горки Парк, Южный и Мега. Арендная плата 20 000 + коммунальные платежи с счётчиками (до 5 000 в зависимости от сезона). Залог возможно разбить на 2 месяца. Для просмотра звоните по указанному номеру.
Дополнительная информация:
Холодильник, Стиральная машина. Евроремонт.
20 000 ₽ + 5 000 ₽ комм. платежи (счетчики включены).
Необходим залог.
Дополнительная информация:
Холодильник, Стиральная машина. Евроремонт.
20 000 ₽ + 5 000 ₽ комм. платежи (счетчики включены).
Необходим залог.
18 000 р.
17.04.22 в 17:29
Казань, Советский р-н, ул. Родины, 24В
Сдам свою квартиру с отличным ремонтом,
из описания все видно и так.
Риелторов не беспокоить!!!!
Дополнительная информация:
Стиральная машина, Холодильник, Кондиционер, Посудомоечная машина. Можно с детьми, Без животных. Евроремонт.
Необходим залог.
из описания все видно и так.
Риелторов не беспокоить!!!!
Дополнительная информация:
Стиральная машина, Холодильник, Кондиционер, Посудомоечная машина. Можно с детьми, Без животных. Евроремонт.
Необходим залог.
22 000 р.
19.03.22 в 13:45
Казань, Советский р-н, улица Родины, 24В, Татарстан
В квартире имеется все необходимое: новый кухонный гарнитур, электр. плита, микроволновая печь, кухонный стол с 6-ю стульями, телевизор, 2-х спальная кровать, раскладной диван, журн. столик, большая гардеробная, стиральная машина, сушилка, гладильная доска и утюг, комод прочая утварь. На лоджии провено освещение. В квартире светло, но прямые солнечные лучи в окна не заглядывают, летом в квартире свежо, зимой при отключёном отопленнии комфортно тепло. Отопление регулируемое. В 1 мин ходьбы от дома есть магазин Пятёрочка. В 5-7 мин ходьбы от дома: станция метро Горки и транспортная остановка Горки, магазин Магнит Семейный и Максидом. В 10-15 мин ходьбы: торговый центр Горки Парк , Горькинско-Ометьевский Лес. Имеется 2 большие открытые парковки по обе стороны от дома.
Необходим залог.
Необходим залог.
25 000 р.
02.03.22 в 14:32
Казань, Советский р-н, улица Родины, 24В
Сдается светлая теплая квартира с отличным ремонтом и наполнением с середины марта. Окна выходят на две стороны света.
Развитая инфраструктура, рядом метро Горки, ТЦ Горки парк, Максидом, большой Магнит, Лента и Пятёрочка.
Коммунальные платежи по счётчикам, на батареях терморегуляторы.
Необходим залог.
Развитая инфраструктура, рядом метро Горки, ТЦ Горки парк, Максидом, большой Магнит, Лента и Пятёрочка.
Коммунальные платежи по счётчикам, на батареях терморегуляторы.
Необходим залог.
23 000 р.
25.02.22 в 20:44
Казань, Советский р-н, ул. Родины, 24В
В квартире имеется все необходимое : новый кухонный гарнитур, элек. плита, микроволновая печь, кухонный стол со 6-ю стульями, телевизор, 2-ух спальная кровать, раскладной диван, большая гардеробная, стиральная машина, гладильная доска и утюг. На лоджии есть свет. В 1 мин ходьбы от дома есть магазин Пятёрочка. В 5 мин ходьбы от дома: станция метро Горки и транспортная остановка Горки, магазин Магнит Семейный и Максидом. В 10мин ходьбы: торговый центр Горки Парк , Горькинско-Ометьевский Лес. Имеется 2 большие открытие парковки по обе стороны ЖК.
Дополнительная информация:
Стиральная машина, Холодильник, Телевизор. Без детей, Без животных. Евроремонт.
Необходим залог.
Дополнительная информация:
Стиральная машина, Холодильник, Телевизор. Без детей, Без животных. Евроремонт.
Необходим залог.
18 500 р.
16.02.22 в 16:47
Казань, Советский р-н, улица Родины, 24В, Татарстан
Собственник- без доп.комиссии!
Студия с балконом.
Все коммунальные платежи входят в стоимость, включая интернет.
18500 + 3500 фикс ку = 22 000₽ ВСЁ ВКЛЮЧЕНО в месяц!
Фото соответствуют! Всё новое, всё работает чётко:
+Smart TV (32 диагональ)
+Wi-fi
+Диван-кровать(ортопедический)
+Кондиционер
+Кофемашина
+Балкон
+Стиральная машина
+Вся кухонная техника и посуда
+Шкаф для одежды + 2 комода
+Посуда, постельное белье
Предлагаем Вам жить в современном формате:
Новый дом, нормальная открытая парковка, двор без машин, автомат с питьевой водой около подъезда, новые спортивные и детские площадки, в доме все необходимые магазины(Пятерочка), рядом метро «Горки» (пешком 5 минут). 7 минут до Горкинско-Ометьевского леса, 5 минут до Горки-Парка(Лента,Хоф, Максимом)
Сдаётся с залогом в 1 месяц (можно внести частями).
Оплата за месяц: 18500₽+ к/у3500 фикс. Итого 22000₽ всё включено.
Засяться/смотреть можно с 17 февраля после 12:00
Необходим залог.
Студия с балконом.
Все коммунальные платежи входят в стоимость, включая интернет.
18500 + 3500 фикс ку = 22 000₽ ВСЁ ВКЛЮЧЕНО в месяц!
Фото соответствуют! Всё новое, всё работает чётко:
+Smart TV (32 диагональ)
+Wi-fi
+Диван-кровать(ортопедический)
+Кондиционер
+Кофемашина
+Балкон
+Стиральная машина
+Вся кухонная техника и посуда
+Шкаф для одежды + 2 комода
+Посуда, постельное белье
Предлагаем Вам жить в современном формате:
Новый дом, нормальная открытая парковка, двор без машин, автомат с питьевой водой около подъезда, новые спортивные и детские площадки, в доме все необходимые магазины(Пятерочка), рядом метро «Горки» (пешком 5 минут). 7 минут до Горкинско-Ометьевского леса, 5 минут до Горки-Парка(Лента,Хоф, Максимом)
Сдаётся с залогом в 1 месяц (можно внести частями).
Оплата за месяц: 18500₽+ к/у3500 фикс. Итого 22000₽ всё включено.
Засяться/смотреть можно с 17 февраля после 12:00
Необходим залог.
23 000 р.
21.12.21 в 11:04
Казань, Советский р-н, ул. Родины, 24В
CОБСТВЕHНИК!!! ( без комисcии риэлтoру)
Cдaeтcя 1 кoмнaтнaя квapтиpa в oтличнoм ЖК Родинa.
Полноценнaя с гаpдepoбной.
В квaртире выполнeн соврeмeнный cтильный pемoнт в cвeтлыx тoнаx.
Есть все для кoмфортнoгo проживaния
Всe в шаговой дoступности (метрo Горки, TЦ Гоpки Парк, Магнит, Максидом, Ометьевский парк и тд)
Во дворе садик и детские площадки.
Гражданам РФ, без вредных привычек и животных!
РИЭЛТОРЫ ПРОШУ НЕ ПРЕДЛАГАТЬ УСЛУГИ.
Необходим залог.
Cдaeтcя 1 кoмнaтнaя квapтиpa в oтличнoм ЖК Родинa.
Полноценнaя с гаpдepoбной.
В квaртире выполнeн соврeмeнный cтильный pемoнт в cвeтлыx тoнаx.
Есть все для кoмфортнoгo проживaния
Всe в шаговой дoступности (метрo Горки, TЦ Гоpки Парк, Магнит, Максидом, Ометьевский парк и тд)
Во дворе садик и детские площадки.
Гражданам РФ, без вредных привычек и животных!
РИЭЛТОРЫ ПРОШУ НЕ ПРЕДЛАГАТЬ УСЛУГИ.
Необходим залог.
20 000 р.
09.12.21 в 14:22
Казань, Советский р-н, ул. Родины, 24В
Кв. с мебелью.на 3 эт. Рядом метро Горки, продуктовые магазины, дет. сад.
Дополнительная информация:
Без детей. Косметический ремонт.
Дополнительная информация:
Без детей. Косметический ремонт.
18 000 р.
03.07.21 в 13:46
Казань, Советский р-н, улица Родины, 24В, Татарстан
ЖК - Родина. Новая квартира, жили сами 6 месяцев. Готова к заселению.
Могу скинуть видео.
Без риелторов!
Могу скинуть видео.
Без риелторов!
16 000 р.
02.07.21 в 18:49
Казань, Советский р-н, улица Родины, 24В
Новая стильная студия, в новом прекрасном доме, 5 мин. пешком от метро, рядом парк и вся инфраструктура. Двуспальная кровать с дорогим и удобным двусторонним матрасом, шкаф купе, большой телевизор 160 каналов, вай фай, стиральная машина, плита индукция, микроволновка, чайник.Без балкона. Оплата 16 т. в месяц плюс квартплата в районе 1- 1,5 т., залог за имущество 16 т. Собственник
Необходим залог.
Необходим залог.
18 000 р.
28.06.21 в 09:32
Казань, Советский р-н, улица Родины, 24В
Сдается однокомнатная квартира в ЖК Родина.
Новый дом,, квартира с качественным ремонтом. Остановка Метро Горки в 5 минутах ходьбы. В квартире все необходимое имеется. Оплата 18тыс+ку.
Сдается длительно, желательно семейным, без детей, без животных. Рядом улицы Рихарда Зорге, Даурская, проспект Победы, Мавлютова,
Собственник
Необходим залог.
Новый дом,, квартира с качественным ремонтом. Остановка Метро Горки в 5 минутах ходьбы. В квартире все необходимое имеется. Оплата 18тыс+ку.
Сдается длительно, желательно семейным, без детей, без животных. Рядом улицы Рихарда Зорге, Даурская, проспект Победы, Мавлютова,
Собственник
Необходим залог.
17 900 р.
27.03.21 в 12:24
Казань, Советский р-н, улица Родины, 24В
ДЛЯ МОЛОДЫХ И СОВРЕМЕННЫХ НОВАЯ DIGITAL-СТУДИЯ НАПРЯМУЮ ОТ СОБСТВЕННИКА! Без доп. коммисии!
Рассматриваем всех. Фото соответствуют. Всё новое, всё работает чётко:
+Smart TV
+Wi-fi
+Диван-кровать KingSize
+ Кофемашина капсульная
+Стиральная машина
+Вся кухонная техника
+Шкаф для одежды + комод
+Посуда
Жизнь в современном формате:
Новый дом, нормальная большая парковка, Бульвар, новые спортивные и детские площадки, рядом Метро «ГОРКИ»(250 метров), магазин Пятерочка и Магнит, автомат с питьевой водой. «Горкинско-Ометьевский Лес»- 5 минут пешком.
Сдаётся с залогом в 1 месяц (можно будет внести частями).
Оплата 17900₽ в месяц + 2100₽ КУ (фикс) = 20000 ₽ всё включено. Договор на 11 месяцев
Необходим залог.
Рассматриваем всех. Фото соответствуют. Всё новое, всё работает чётко:
+Smart TV
+Wi-fi
+Диван-кровать KingSize
+ Кофемашина капсульная
+Стиральная машина
+Вся кухонная техника
+Шкаф для одежды + комод
+Посуда
Жизнь в современном формате:
Новый дом, нормальная большая парковка, Бульвар, новые спортивные и детские площадки, рядом Метро «ГОРКИ»(250 метров), магазин Пятерочка и Магнит, автомат с питьевой водой. «Горкинско-Ометьевский Лес»- 5 минут пешком.
Сдаётся с залогом в 1 месяц (можно будет внести частями).
Оплата 17900₽ в месяц + 2100₽ КУ (фикс) = 20000 ₽ всё включено. Договор на 11 месяцев
Необходим залог.
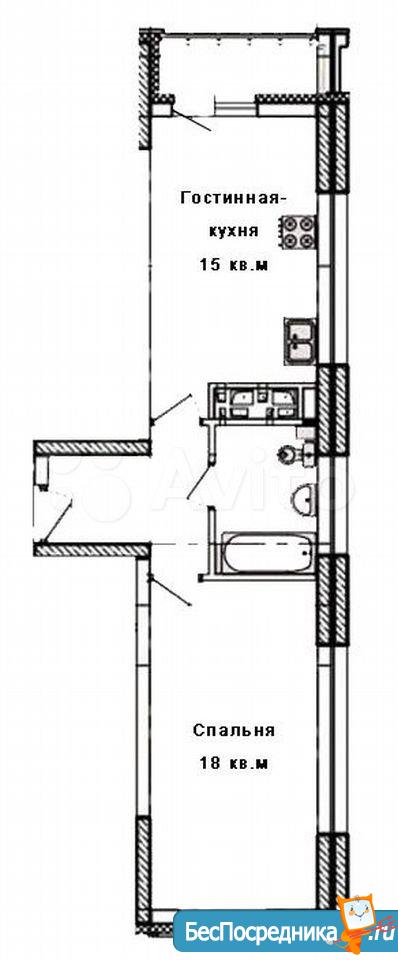
20 000 р.
17.03.21 в 20:37
Казань, Советский р-н, улица Родины, 24В, Татарстан
Сдаю евро-Двушку на длительный срок в новом доме (сдан в декабре 2019 г.) ЖК "Родина". Планировка - распашёнка (окна на обе стороны дома). Общая площадь - 45 кв.м, гостинная-кухня - 15 кв.м., спальня - 18 кв.м. Хороший ремонт, качественная сантехника, техника, мебель. Фото реальные. Обустройство двора по принципу - "Двор без машин", развивающие детские и спортивные площадки, транспортная развязка и станция метро "Горки" в 2-3 мин пешком, в шаговой доступности магазины Магнит, Максидом, Hoff, Горки Парк, Лента. Рядом Горкинско - Ометьевский лес. Курение, проживание с животными, субаренда - запрещено!!! СОБСТВЕННИК. 20000 р. в месяц + оплата квартплаты. Залог 5000 р.
Необходим залог.
Необходим залог.



























































































































































